Umbau einer Scheune auf dem Hang
Programm: Wohnen
Bauherrschaft: Privat
Le Levron, Wallis, CH
2014 - 2016,
Gebaut
Schreinerarbeiten und Innenausbauten vom Bauherrn ausgeführt.
Programm: Wohnen
Bauherrschaft: Privat
Le Levron, Wallis, CH
2014 - 2016,
Gebaut
Schreinerarbeiten und Innenausbauten vom Bauherrn ausgeführt.
Die ehemalige Scheune befindet sich in der Fortsetzung der dörflichen Struktur, am Rande des Dorfes in Richtung der landwirtschaftlichen Grundstücke. Es sieht so aus, als ob es in Zukunft noch ein Bestandteil des lebendigen Dorfes sein könnte, in dem die bestehenden Baustrukturen restauriert, saniert und umgestaltet werden.
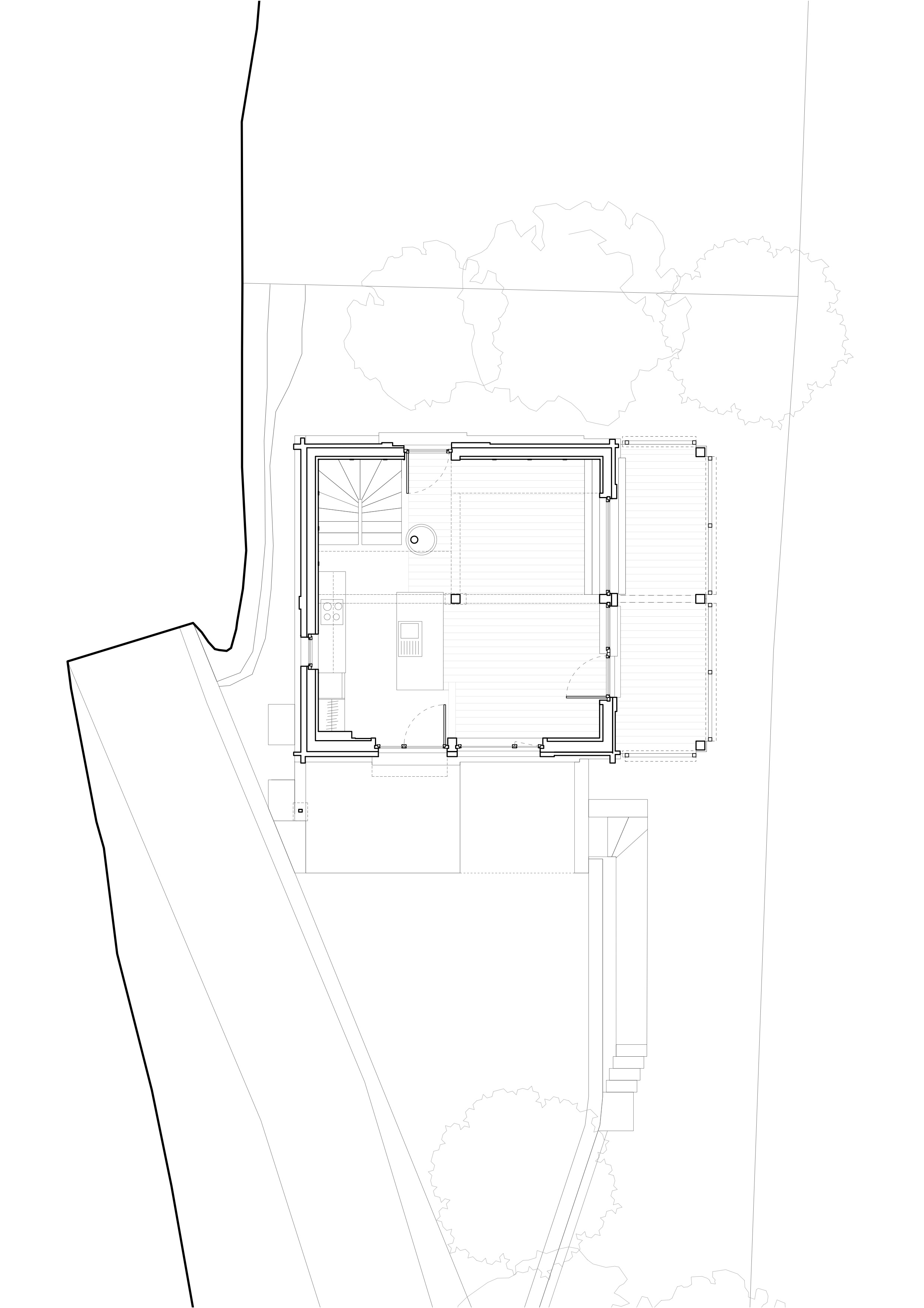
Die neue Holzstruktur lässt sich innerhalb der Haut aus Strickbau mit einer neuen Holzkonstruktion nieder, und erhebt sich leicht über die Höhe der ehemaligen Traufe.Bestehende und neue Gebäudeteile werden ein neues Ganzes bilden. Der alte Strickbau, die neue vertikale Struktur der Holzrahmen, die horizontalen Schalungstafeln und die vertikale Dynamik der Betontreppe bilden ein strukturelles Geflecht, das dem Wohnraum konsistent Form gibt.
Das neue Dach, mit einem geringen Überstand auf drei Seiten, wiederholt den Ausdruck des ehemaligen Daches. Nach vorne zum Hang erstreckt sich das Dach dagegen über drei hohen Pfeilerfiguren, die auf drei starken Betonpfeiler ruhen, und bildet einen überdachten Außenraum, eine alpine Loggia.
Diese Verwandlung ermöglicht es dem Bewohner unter Bedingungen zu wohnen, die zeitgenössischen Wohnbedürfnissen angepasst sind, führt zu einem deutlich veränderten Ausdruck dieses vernakularen Elements, während die Gesamtwirkung dieses Gebäudes in der Topographie erhalten bleibt.
Dieser Eingriff bietet eine ehrliche Lösung für eine Verdichtung der bestehenden gebauten Struktur von Bergdörfern, wobei die Körnung dieser Struktur und ihre Beziehung zur Landschaft intakt bleiben.
Die neue Holzstruktur lässt sich innerhalb der Haut aus Strickbau mit einer neuen Holzkonstruktion nieder, und erhebt sich leicht über die Höhe der ehemaligen Traufe.Bestehende und neue Gebäudeteile werden ein neues Ganzes bilden. Der alte Strickbau, die neue vertikale Struktur der Holzrahmen, die horizontalen Schalungstafeln und die vertikale Dynamik der Betontreppe bilden ein strukturelles Geflecht, das dem Wohnraum konsistent Form gibt.
Das neue Dach, mit einem geringen Überstand auf drei Seiten, wiederholt den Ausdruck des ehemaligen Daches. Nach vorne zum Hang erstreckt sich das Dach dagegen über drei hohen Pfeilerfiguren, die auf drei starken Betonpfeiler ruhen, und bildet einen überdachten Außenraum, eine alpine Loggia.
Diese Verwandlung ermöglicht es dem Bewohner unter Bedingungen zu wohnen, die zeitgenössischen Wohnbedürfnissen angepasst sind, führt zu einem deutlich veränderten Ausdruck dieses vernakularen Elements, während die Gesamtwirkung dieses Gebäudes in der Topographie erhalten bleibt.
Dieser Eingriff bietet eine ehrliche Lösung für eine Verdichtung der bestehenden gebauten Struktur von Bergdörfern, wobei die Körnung dieser Struktur und ihre Beziehung zur Landschaft intakt bleiben.